20.09 
Casa CL
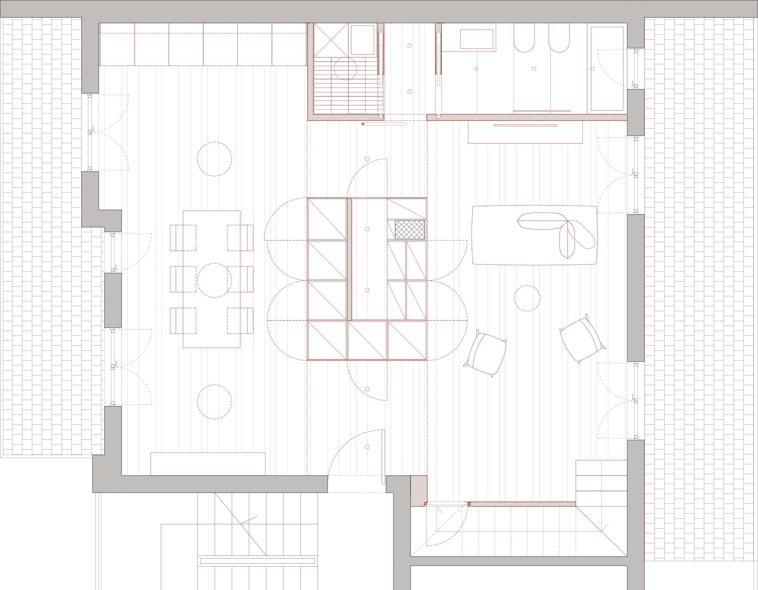
A house renovation as a shelter. A few, essential materials juxtapose to form the surfaces where life occurs. Marble, wood, white plaster.The living space, on the ground floor, is defined by a single, white volume as an infrastructure containing the necessary storage, supporting living actions happening around it. The travertine pavement leads through a series of small steps to the upper floor where a studio and the bedrooms are located.
︎
A house renovation as a shelter. A few, essential materials juxtapose to form the surfaces where life occurs. Marble, wood, white plaster.The living space, on the ground floor, is defined by a single, white volume as an infrastructure containing the necessary storage, supporting living actions happening around it. The travertine pavement leads through a series of small steps to the upper floor where a studio and the bedrooms are located.
Location: Crispano, Italy
Year: 2020
Status: Completed
︎










